貸し倉庫検索サイト

LOGI PICK by 株式会社ASSORT

大阪府摂津市鳥飼本町2丁目|貸し倉庫

物件番号:3375

物件情報

所在地
大阪府摂津市鳥飼本町2-8-27
空き状況
アクセス
■近畿自動車道「摂津北」IC 3.0km ■大阪モノレール本線「摂津」駅 徒歩25分
賃貸/寄託
賃貸
賃料(月額)
1,210,000円
敷金/保証金
3ヶ月
礼金
1ヶ月
使用開始日
ご相談
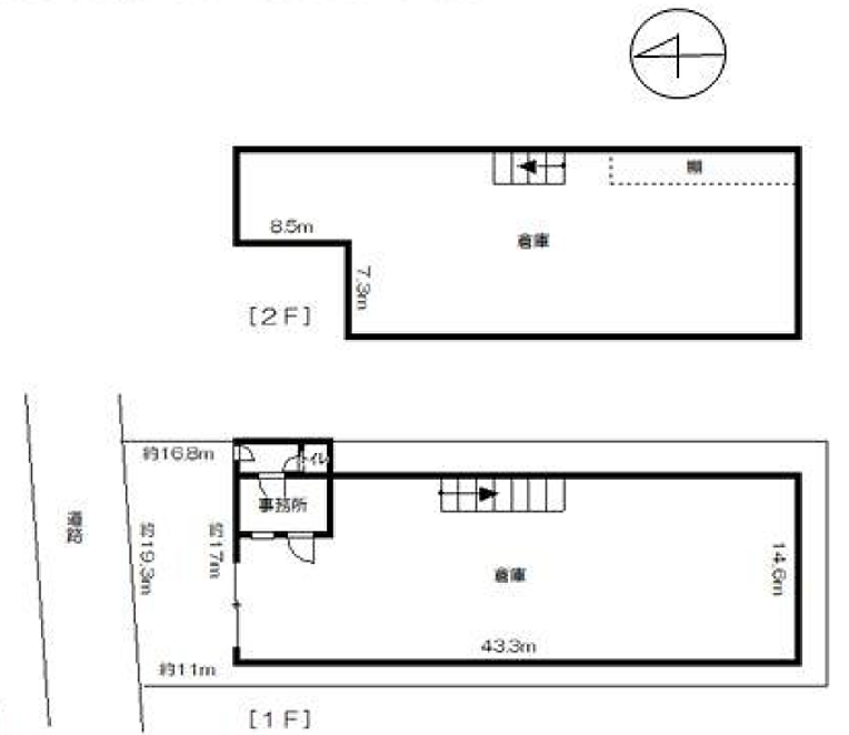
契約面積
364坪
敷地面積
297坪
竣工
1971年
構造
軽量鉄骨造
用途地域
準工業地域
階層
2階
駐車場
設備
■2tクレーンあり(残置物)
備考
■賃貸保証契約、火災保険 加入要

お電話でのお問い合わせも可能です。

お電話の際は、ページ上部にある記載の物件番号をお伝えいただくとスムーズです。

LOGI PICK LOGO
copyright © 2023 LOGI PICK All Right Reserved.