貸し倉庫検索サイト

LOGI PICK by 株式会社ASSORT

京都府城陽市寺田金尾|貸し倉庫

物件番号:3360

物件情報

所在地
京都府城陽市寺田金尾60-6
空き状況
アクセス
■京奈和自動車道「城陽」IC 1.6km ■近鉄京都線「寺田」駅 徒歩18分
賃貸/寄託
賃貸
賃料(月額)
605,000円
敷金/保証金
要お問い合わせ
使用開始日
ご相談
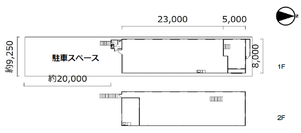
契約面積
133坪
敷地面積
142坪
竣工
1980年
構造
鉄骨造
階層
2階
駐車場
備考
■現況有姿渡し ■解約予告 6ヶ月前

お電話でのお問い合わせも可能です。

お電話の際は、ページ上部にある記載の物件番号をお伝えいただくとスムーズです。

LOGI PICK LOGO
copyright © 2023 LOGI PICK All Right Reserved.