貸し倉庫検索サイト

LOGI PICK by 株式会社ASSORT

大阪府摂津市南別府町|貸し倉庫

物件番号:3345

物件情報

所在地
大阪府摂津市南別府町8-40
アクセス
■近畿自動車道「摂津南」IC 2.3km ■大阪メトロ今里筋線「井高野」駅 徒歩8分
賃貸/寄託
賃貸
賃料(月額)
550,000円
敷金/保証金
要お問い合わせ
使用開始日
ご相談
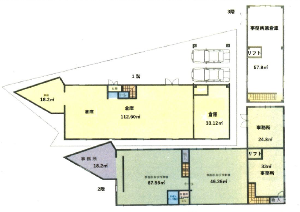
契約面積
129坪
敷地面積
91坪
構造
鉄骨造
用途地域
準工業地域
階層
3階
駐車場
設備
■解約金 1,000,000円(別途消費税)

お電話でのお問い合わせも可能です。

お電話の際は、ページ上部にある記載の物件番号をお伝えいただくとスムーズです。

LOGI PICK LOGO
copyright © 2023 LOGI PICK All Right Reserved.