貸し倉庫検索サイト

LOGI PICK by 株式会社ASSORT

神奈川県横浜市瀬谷区卸本町9308|貸し倉庫

物件番号:3338

物件情報

所在地
神奈川県横浜市瀬谷区卸本町9308-23
空き状況
使用中
アクセス
■東名高速道路「横浜町田IC」1.4㎞ ■東急田園都市線「南町田グランベリーパーク」徒歩32分
賃貸/寄託
賃貸
賃料(月額)
1,980,000円
契約形態
定期借家
敷金/保証金
3ヶ月
礼金
1ヶ月
使用開始日
2026年8月下旬予定
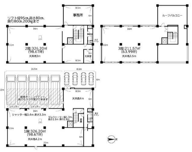
契約面積
261坪
天井高
1階:4m~4.2m 2階:3m 3階:3.5m
竣工
1974年
構造
SRC造
用途地域
近隣商業
階層
3階
区画
1階-3階
駐車場
設備
■1-2階各98.67坪/3階63.99坪 ■ダムウェーター(500㎏) ■男女別トイレ、都市ガス、東京電力、公営水道、公共下水 ■24時間利用可、土日・祝日利用可 ■駐車場:大型ロングトラック5台、普通車4台まで駐車可 ■内外装フルリフォーム済み(2013年12月) ■設備全て残置物扱い
備考
■償却:解約時20% ■賃貸保証:加入要/フォーシーズ利用/初回保証委託料賃料の100%/集金代行必須 ■保険等加入:加入要/火災保険/5年間 ■検査済証なし ■契約期間:5年

お電話でのお問い合わせも可能です。

お電話の際は、ページ上部にある記載の物件番号をお伝えいただくとスムーズです。

LOGI PICK LOGO
copyright © 2023 LOGI PICK All Right Reserved.