貸し倉庫検索サイト

LOGI PICK by 株式会社ASSORT

羽生倉庫(賃貸)

物件番号:3283

物件情報

所在地
埼玉県羽生市大字神戸前
アクセス
■羽生ICから5.3㎞、加須ICから9.0㎞ ■東武鉄道南羽生駅から950m ■隅田川貨物ターミナルから65㎞ ■羽田空港から91㎞
賃貸/寄託
賃貸
賃料(月額)
要お問い合わせ
共益費/管理費(月額)
要お問い合わせ
契約形態
普通賃貸借
敷金/保証金
3ヶ月
使用開始日
2026年8月1日以降
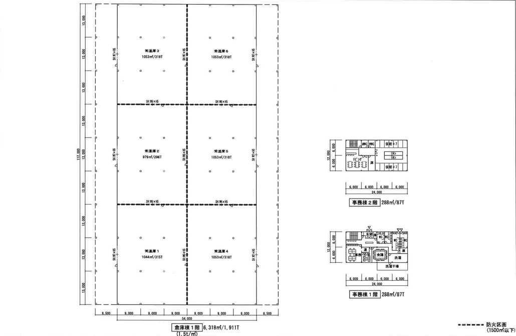
契約面積
2,074坪
床荷量
1.5t/m2
天井高
6m
竣工
2026年
構造
S造
階層
2階
区画
2棟
設備
■平屋建て倉庫(約1,900坪)/2階建事務所(各階約87坪) ■約27m×39mの無柱空間 ■シャッター間口幅8.1m、庇長さ7m、庇下高さ6.5m ■24時間365日対応 ■第一類営業倉庫取得予定

お電話でのお問い合わせも可能です。

お電話の際は、ページ上部にある記載の物件番号をお伝えいただくとスムーズです。

LOGI PICK LOGO
copyright © 2023 LOGI PICK All Right Reserved.