貸し倉庫検索サイト

LOGI PICK by 株式会社ASSORT

⼤阪府⼤阪市東成区⼤今⾥2丁目|貸し倉庫

物件番号:3278

物件情報

所在地
⼤阪府⼤阪市東成区⼤今⾥2-7-14
空き状況
アクセス
■阪神高速13号東大阪線「森之宮」IC 2.5km ■大阪メトロ千日前線「新深江」駅 徒歩11分
賃貸/寄託
賃貸
賃料(月額)
750,000円
敷金/保証金
1ヶ月
礼金
3ヶ月
使用開始日
2026年4月中旬以降予定
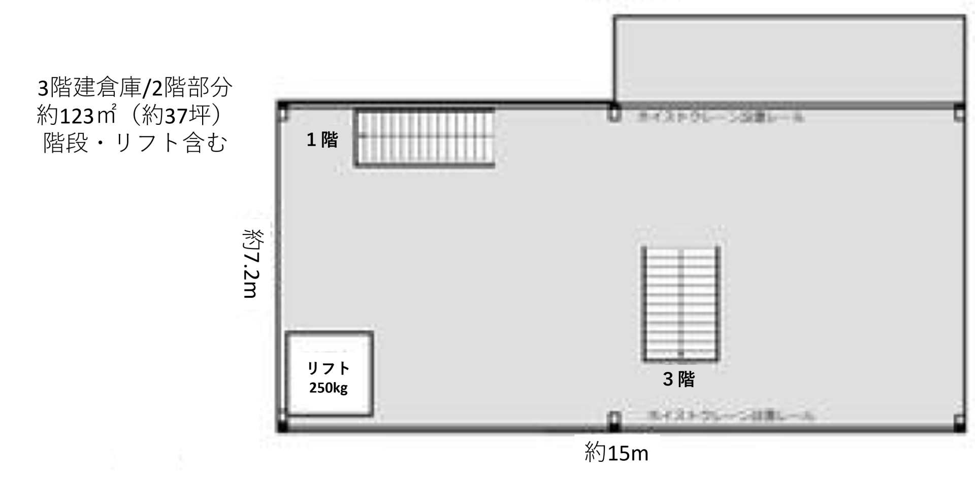
契約面積
144坪
竣工
1994年
構造
鉄骨造
用途地域
準工業地域
階層
3階
区画
3階建て倉庫 地上1階~3階・平屋連棟倉庫
駐車場
設備
■駐車場あり(2台分) ■天井高:5.0m(平屋連棟倉庫) ■トイレあり ■電動シャッターあり ■3階事務所スペースあり
備考
■賃貸保証:加入要(賃料等の1ヶ月分相当額)

お電話でのお問い合わせも可能です。

お電話の際は、ページ上部にある記載の物件番号をお伝えいただくとスムーズです。

LOGI PICK LOGO
copyright © 2023 LOGI PICK All Right Reserved.