貸し倉庫検索サイト

LOGI PICK by 株式会社ASSORT

埼玉県久喜市久喜東2丁目|貸し倉庫(一棟貸し)

物件番号:3267

物件情報

所在地
埼玉県久喜市久喜東2丁目45-26
空き状況
使用中
アクセス
■東北自動車道「久喜IC」約4㎞ ■JR宇都宮線「久喜」徒歩13分
賃貸/寄託
賃貸
賃料(月額)
1,100,000円
敷金/保証金
6ヶ月
礼金
1ヶ月
使用開始日
2026年7月予定
契約面積
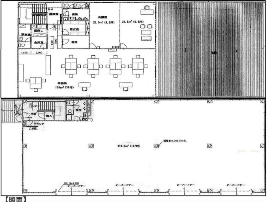
211坪
床式
低床式
天井高
1階4.8m(梁下) 2階2.6m
竣工
2001年
構造
S造
階層
2階
区画
1階-2階
設備
■1階倉庫135.10坪/2階事務所75.44坪、1棟貸し ■男女別トイレ、給湯室
備考
■契約期間:3年 ■保証会社要加入 ■水道電気代別途費用

お電話でのお問い合わせも可能です。

お電話の際は、ページ上部にある記載の物件番号をお伝えいただくとスムーズです。

LOGI PICK LOGO
copyright © 2023 LOGI PICK All Right Reserved.