貸し倉庫検索サイト

LOGI PICK by 株式会社ASSORT

東京都大田区京浜島1丁目|貸し倉庫

物件番号:3263

物件情報

所在地
東京都大田区京浜島1丁目2-7
空き状況
使用中
アクセス
■首都高速1号羽田線「空港西出入口(IC)」5.38㎞ ■東京モノレール羽田線「昭和島」徒歩14分
賃貸/寄託
賃貸
賃料(月額)
7,514,800円
敷金/保証金
6ヶ月
使用開始日
2026年5⽉1⽇
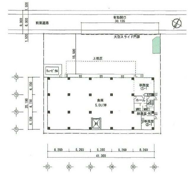
契約面積
1,051坪
敷地面積
526坪
床式
高床式
天井高
梁下 1階4.5m 2-3階4.82m 4階4.37m
竣工
1986年
構造
RC造
用途地域
工業専用地域
階層
4階
区画
1~4階部分
駐車場
設備
■BOX型 ■床荷重:1階5.0t/坪、2-3階3.5t/坪、4階3.0t/坪 ■荷物用EV1基(3.0t、W2.8m×D3.4m×H2.65m)
備考
■契約期間:5年

お電話でのお問い合わせも可能です。

お電話の際は、ページ上部にある記載の物件番号をお伝えいただくとスムーズです。

LOGI PICK LOGO
copyright © 2023 LOGI PICK All Right Reserved.