貸し倉庫検索サイト

LOGI PICK by 株式会社ASSORT

東京都国分寺市光町1丁目|貸し倉庫(一棟貸し)

物件番号:3250

物件情報

所在地
東京都国分寺市光町1丁目29-10
空き状況
アクセス
■中央自動車道「国立府中IC」4.96㎞ ■JR中央本線「国立」徒歩9分
賃貸/寄託
賃貸
賃料(月額)
1,870,000円
契約形態
定期借家
敷金/保証金
4ヶ月
礼金
1ヶ月
使用開始日
即時
契約面積
192坪
天井高
2.5m
竣工
1994年
構造
RC造
用途地域
1種中⾼/2種住居
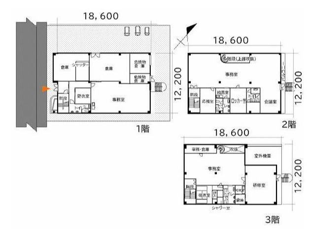
階層
3階
区画
1階-3階
駐車場
設備
■1階67.69坪/2階67.69坪/3階56.28坪、1棟貸し ■トイレ、エアコン、シャッター ■電灯、上下水道 ■駐車場約40台分、別途約55坪契約相談可能
備考
■契約期間:10年 ■家賃保証会社に加入頂く場合がございます。

お電話でのお問い合わせも可能です。

お電話の際は、ページ上部にある記載の物件番号をお伝えいただくとスムーズです。

LOGI PICK LOGO
copyright © 2023 LOGI PICK All Right Reserved.