貸し倉庫検索サイト

LOGI PICK by 株式会社ASSORT

埼玉県深谷市岡1丁目|貸し倉庫

物件番号:3233

物件情報

所在地
埼玉県深谷市岡1丁目18-4、18-15
空き状況
アクセス
■関越自動車道「本庄児玉IC」8.84㎞ ■JR高崎線「岡部」徒歩13分
賃貸/寄託
賃貸
賃料(月額)
1,430,000円
敷金/保証金
2ヶ月
礼金
1ヶ月
使用開始日
相談
契約面積
622坪
竣工
1980年
構造
S造
用途地域
建物A:一種中高 建物B:近隣商業
階層
3階
区画
2棟
駐車場
設備
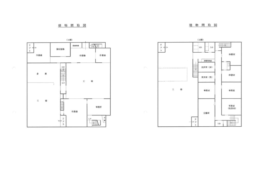
■建物A:1階157.30坪/2階159.08坪 ■建物B:1-2階115.23坪/3階75.41坪 ■プロパンガス、電気、動力電源、上下水道 ■給湯、バス、トイレ、シャワー ■エアコン(残置物)
備考
■契約期間:3年(更新可) ■保険加入義務有 ■保証会社加入要(ジェイリース株式会社) ■1年未満の解約違約金あり

お電話でのお問い合わせも可能です。

お電話の際は、ページ上部にある記載の物件番号をお伝えいただくとスムーズです。

LOGI PICK LOGO
copyright © 2023 LOGI PICK All Right Reserved.