貸し倉庫検索サイト

LOGI PICK by 株式会社ASSORT

神奈川県平塚市大神9丁目(520坪)|貸し倉庫

物件番号:3219

物件情報

所在地
神奈川県平塚市大神9丁目14-12
空き状況
使用中
アクセス
■新東名高速道路「厚木南IC」約3.1㎞ ■東名高速道路「厚木IC」約4.3㎞ ■小田急小田原線「本厚木」バス15分「大神」停歩3分
賃貸/寄託
賃貸
賃料(月額)
2,411,640円
契約形態
定期借家
敷金/保証金
3ヶ月
礼金
1ヶ月
使用開始日
相談
契約面積
522坪
敷地面積
1,416坪
床荷量
2階:0.7t/m2
竣工
1969年
構造
S造
用途地域
工業地域
階層
2階
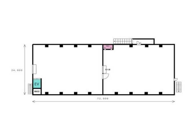
区画
2階部分
駐車場
設備
■トイレ ■動力容量500KVA ■EV3t積み ■大型トラック搬入可 ■24時間セキュリティー ■駐車場2台分
備考
■平成10年耐震補強工事 ■保証会社加入要 ■荷役相談可 ■契約期間:3年

お電話でのお問い合わせも可能です。

お電話の際は、ページ上部にある記載の物件番号をお伝えいただくとスムーズです。

LOGI PICK LOGO
copyright © 2023 LOGI PICK All Right Reserved.