貸し倉庫検索サイト

LOGI PICK by 株式会社ASSORT

埼玉県加須市大桑2丁目|貸し倉庫

物件番号:3212

物件情報

所在地
埼玉県加須市大桑2丁目15-1
空き状況
使用中
アクセス
■東北自動車道「加須IC」約1.9㎞ ■東武伊勢崎大師線「花崎」徒歩29分
賃貸/寄託
賃貸
賃料(月額)
3,172,158円
共益費/管理費(月額)
要お問い合わせ
契約形態
定期借家
敷金/保証金
4ヶ月
礼金
1ヶ月
使用開始日
相談
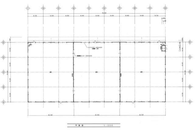
契約面積
801坪
敷地面積
1,360坪
竣工
1997年
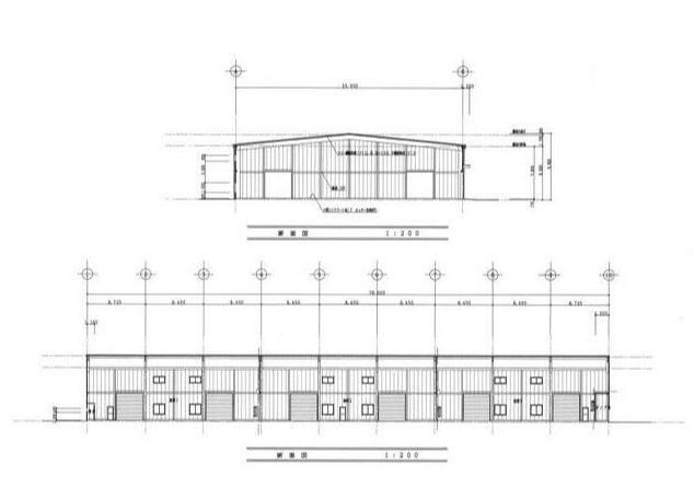
構造
S造
用途地域
工業専用地域
階層
1階
設備
■平屋建て ■電気、水道、トイレ
備考
■償却:契約時1ヶ月 ■契約期間:5年 ■指定借家人賠償責任補償特約付火災保険要加入 ■指定賃貸保証制度等要加入 ■指定工事業者あり

お電話でのお問い合わせも可能です。

お電話の際は、ページ上部にある記載の物件番号をお伝えいただくとスムーズです。

LOGI PICK LOGO
copyright © 2023 LOGI PICK All Right Reserved.