貸し倉庫検索サイト

LOGI PICK by 株式会社ASSORT

大阪府豊中市名神口3丁目|貸し倉庫

物件番号:3188

物件情報

所在地
大阪府豊中市名神口3丁目11-3
アクセス
■阪神高速11号池田線「豊中南」IC 0.8km ■阪急宝塚線「庄内」駅 徒歩18分
賃貸/寄託
賃貸
賃料(月額)
770,000円
敷金/保証金
8ヶ月
礼金
2ヶ月
使用開始日
2026年8月以降予定
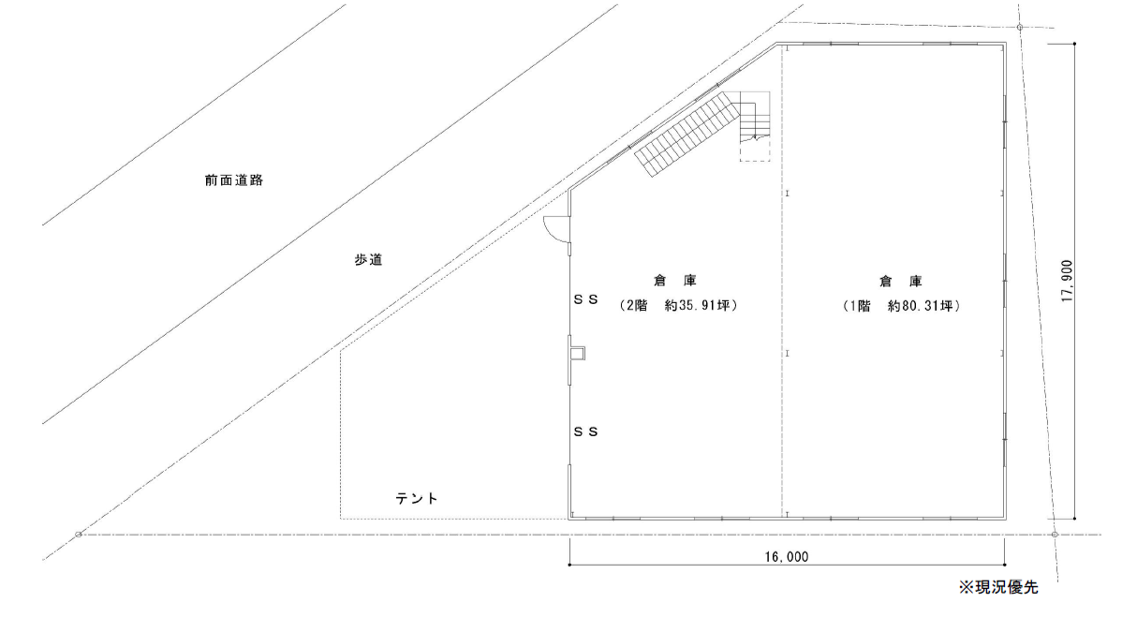
契約面積
116坪
敷地面積
134坪
竣工
1985年
構造
鉄骨造スレート葺造
用途地域
準工業地域
階層
2階
駐車場
設備
■クレーン 1t、0.5tあり ■保証会社にご加入いただく場合があります。

お電話でのお問い合わせも可能です。

お電話の際は、ページ上部にある記載の物件番号をお伝えいただくとスムーズです。

LOGI PICK LOGO
copyright © 2023 LOGI PICK All Right Reserved.