貸し倉庫検索サイト

LOGI PICK by 株式会社ASSORT

柏市大島田二丁目物流施設

物件番号:3178

物件情報

所在地
千葉県柏市大島田2丁目5-3
アクセス
■常磐自動車道「柏IC」約12.5㎞ ■東武バス「セブンパークアリオ柏前」停歩約9分
賃貸/寄託
賃貸
賃料(月額)
要お問い合わせ
共益費/管理費(月額)
要お問い合わせ
契約形態
定期借家
敷金/保証金
要お問い合わせ
礼金
要お問い合わせ
使用開始日
2026年4月1日予定
契約面積
1,601坪
敷地面積
775坪
床式
高床式
床荷量
1.5t/m2
天井高
5.5m
竣工
2026年
構造
S造
用途地域
工業地域
階層
4階
駐車場
設備
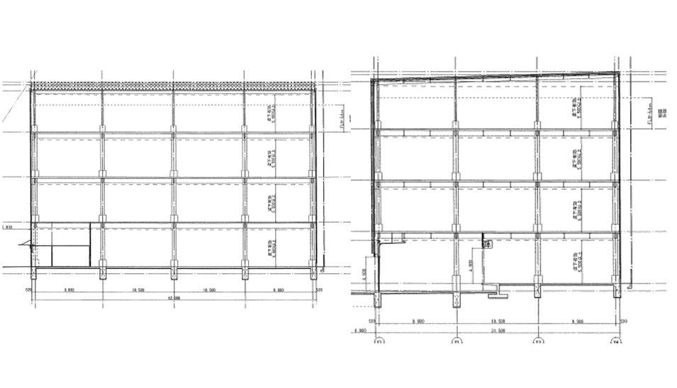
■ボックス型 ■ピロティ型バース、1階に7台分(10t車ベース) ■ドッグレベラー1基実装 ■柱スパン:9.98m×10.5m or 10.5m×10.5m ■荷物用EV1基、垂直搬送機1基、乗用EV1基 ■事務所内空調あり、男女別トイレ(全階)、休憩室 ■駐車場:敷地内15台 ■前面道路:北側8.0m、西側11.0m
備考
■契約期間:5年(応相談)

お電話でのお問い合わせも可能です。

お電話の際は、ページ上部にある記載の物件番号をお伝えいただくとスムーズです。

LOGI PICK LOGO
copyright © 2023 LOGI PICK All Right Reserved.