貸し倉庫検索サイト

LOGI PICK by 株式会社ASSORT

大阪府東大阪市衣摺2丁目|貸し倉庫

物件番号:3167

物件情報

所在地
大阪府東大阪市衣摺2-16-1
空き状況
使用中
アクセス
■近畿自動車道「八尾」IC 2.9km ■JRおおさか東線「衣摺加美北」駅 徒歩10分
賃貸/寄託
賃貸
賃料(月額)
1,650,000円
敷金/保証金
2ヶ月
礼金
2ヶ月
使用開始日
2026年4月下旬予定
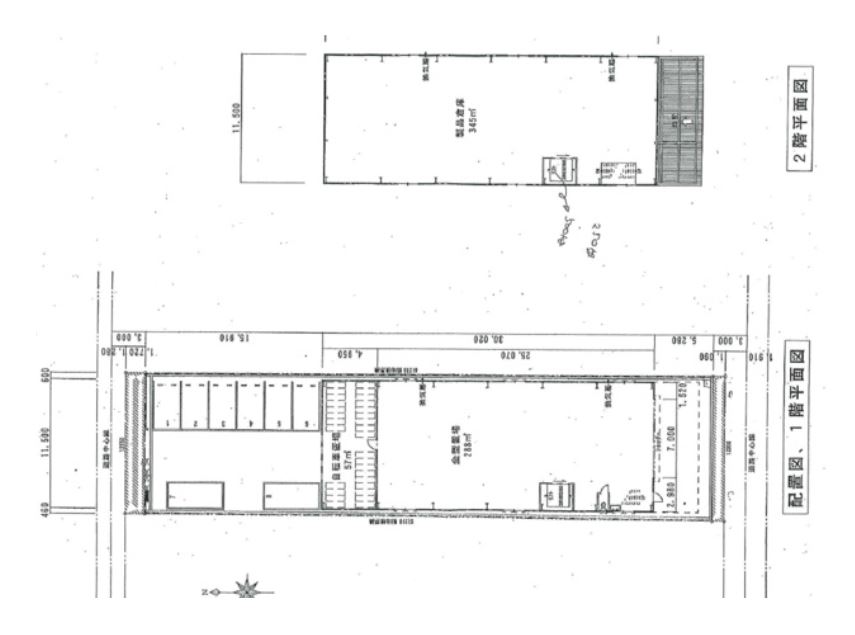
契約面積
296坪
敷地面積
208坪
竣工
2007年
構造
鉄骨造
用途地域
準工業地域
階層
3階

お電話でのお問い合わせも可能です。

お電話の際は、ページ上部にある記載の物件番号をお伝えいただくとスムーズです。

LOGI PICK LOGO
copyright © 2023 LOGI PICK All Right Reserved.