貸し倉庫検索サイト

LOGI PICK by 株式会社ASSORT

大阪府茨木市上郡1丁目|貸し倉庫

物件番号:3146

物件情報

所在地
大阪府茨木市上郡1-4-10
空き状況
アクセス
■名神高速道路「茨木」IC 約0.5km ■JR京都線「茨木」駅 徒歩33分
賃貸/寄託
賃貸
賃料(月額)
18,480,000円
敷金/保証金
要お問い合わせ
礼金
要お問い合わせ
使用開始日
即日
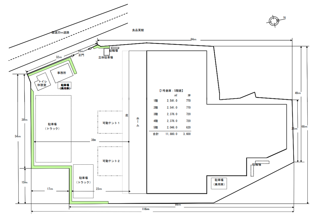
契約面積
3,600坪
敷地面積
1,838坪
竣工
1981年
構造
SRC造
用途地域
準工業地域
階層
6階
区画
1階~5階
設備
■エレベーターあり(2基)
備考
■床荷重 1階2.0t/㎡、2階~5階1.0t/㎡ ■事務所あり(2階建て 約36坪) ■荷物積降場 約150坪 ■保守点検費用 約300,000円

お電話でのお問い合わせも可能です。

お電話の際は、ページ上部にある記載の物件番号をお伝えいただくとスムーズです。

LOGI PICK LOGO
copyright © 2023 LOGI PICK All Right Reserved.