貸し倉庫検索サイト

LOGI PICK by 株式会社ASSORT

神奈川県川崎市高津区東野川2丁目|貸し倉庫

物件番号:3114

物件情報

所在地
神奈川県川崎市高津区東野川2丁目25-4
空き状況
アクセス
■第三京浜道路「都筑IC」4.4㎞ ■東急田園都市線「鷺沼」バス16分「久末」停歩2分
賃貸/寄託
賃貸
賃料(月額)
781,000円
契約形態
定期借家
敷金/保証金
3ヶ月
礼金
2ヶ月
使用開始日
即時
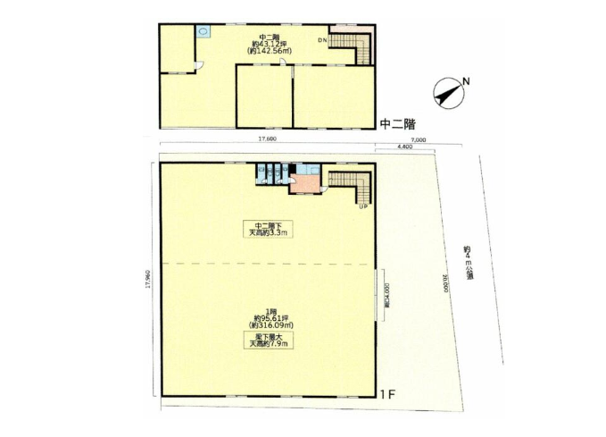
契約面積
93坪
床式
低床式
天井高
1階梁下最大約7.9m 中2階下約3.3m
竣工
1970年
構造
S造
用途地域
1種住居
階層
1階
区画
1階部分
駐車場
設備
■トイレ2ヶ所 ■プロパンガス ■火災警報器(報知機) ■天井高2.5m以上 ■駐車場空き7台
備考
■償却:解約時1ヶ月 ■賃貸保証:加入要/日本セーフティー㈱/初回賃料等合計の100%/更新年10% ■保険等加入:加入要/火災保険 ■契約期間:5年 ■飲食店不可

お電話でのお問い合わせも可能です。

お電話の際は、ページ上部にある記載の物件番号をお伝えいただくとスムーズです。

LOGI PICK LOGO
copyright © 2023 LOGI PICK All Right Reserved.