貸し倉庫検索サイト

LOGI PICK by 株式会社ASSORT

京都府京都市伏見区深草西浦町|貸し倉庫

物件番号:3066

物件情報

所在地
京都府京都市伏見区深草西浦町2-82
空き状況
アクセス
■第二京阪道路油小路「上鳥羽」IC 3.0.km ■地下鉄烏丸線「くいな橋」駅 徒歩10分
賃貸/寄託
賃貸
賃料(月額)
990,000円
敷金/保証金
6ヶ月
使用開始日
2026年4月中旬予定
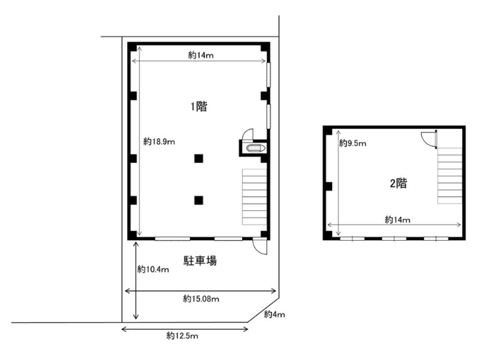
契約面積
120坪
敷地面積
134坪
竣工
1984年
構造
鉄骨造亜鉛メッキ鋼板造
用途地域
第一種住居地域
階層
2階
区画
1階~2階
駐車場

お電話でのお問い合わせも可能です。

お電話の際は、ページ上部にある記載の物件番号をお伝えいただくとスムーズです。

LOGI PICK LOGO
copyright © 2023 LOGI PICK All Right Reserved.