貸し倉庫検索サイト

LOGI PICK by 株式会社ASSORT

LOGI LAND小郡鳥栖インターII(南棟)

物件番号:3063

物件情報

所在地
福岡県小郡市小郡字寺田1693-11
空き状況
アクセス
■長崎自動車道「鳥栖」IC 約2.3km ■西鉄天神大牟田線「西鉄小郡」駅 徒歩20分
賃貸/寄託
賃貸
賃料(月額)
要お問い合わせ
共益費/管理費(月額)
要お問い合わせ
敷金/保証金
要お問い合わせ
礼金
要お問い合わせ
使用開始日
ご相談
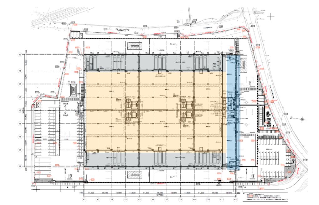
契約面積
9,284坪
敷地面積
7,086坪
床式
高床式
床荷量
1.5t/m2
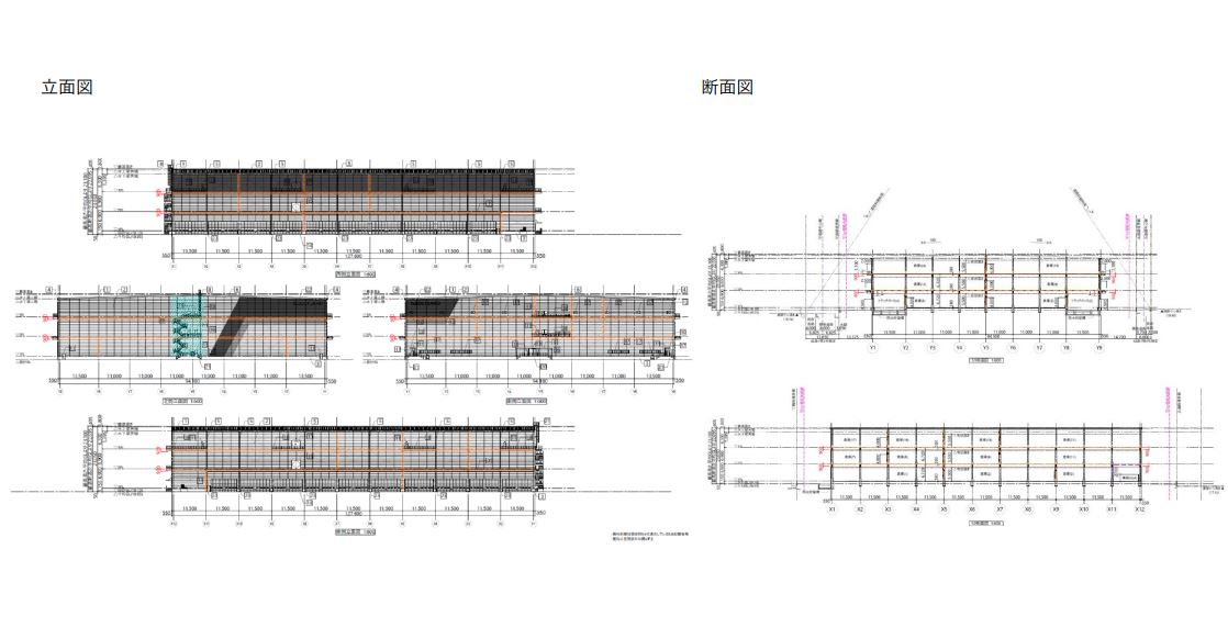
天井高
5.5m
竣工
2026年
構造
鉄骨造
用途地域
市街化調整区域
階層
3階
区画
ご相談
駐車場
設備
■荷物用エレベーター4基(3.5t) ■垂直搬送機4基(1.5t) ■乗用エレベーター1基設置予定 ■駐車場:普通乗用車151台、軽自動車10台、トラック待機場10台

お電話でのお問い合わせも可能です。

お電話の際は、ページ上部にある記載の物件番号をお伝えいただくとスムーズです。

LOGI PICK LOGO
copyright © 2023 LOGI PICK All Right Reserved.