貸し倉庫検索サイト

LOGI PICK by 株式会社ASSORT

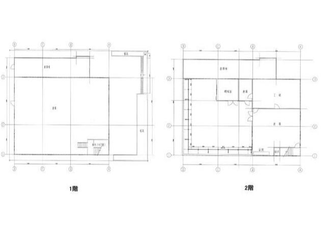
東京都大田区京浜島2丁目|貸し工場

物件番号:3058

物件情報

所在地
東京都大田区京浜島2丁目4-15
空き状況
使用中
アクセス
■首都高速湾岸線「空港中央出入口(IC)」6.55㎞ ■東京モノレール羽田線「昭和島」徒歩30分
賃貸/寄託
賃貸
賃料(月額)
1,278,200円
契約形態
普通賃貸借
敷金/保証金
3ヶ月
礼金
1ヶ月
使用開始日
相談
契約面積
166坪
竣工
1983年
構造
S造
階層
2階
区画
1階-2階
備考
■賃貸保証:加入要 賃料の1ヶ月分(別途消費税)※更新保証料1年毎に更新保証料が別途かかります。 ■契約期間:3年

お電話でのお問い合わせも可能です。

お電話の際は、ページ上部にある記載の物件番号をお伝えいただくとスムーズです。

LOGI PICK LOGO
copyright © 2023 LOGI PICK All Right Reserved.