貸し倉庫検索サイト

LOGI PICK by 株式会社ASSORT

兵庫県神戸市東灘区魚崎南町6丁目|貸し倉庫

物件番号:3011

物件情報

所在地
兵庫県神戸市東灘区魚崎南町6-10-4
空き状況
アクセス
■阪神高速道路5号湾岸線「魚崎浜」IC 1.5km ■阪神電鉄本線「青木」駅 徒歩7分
賃貸/寄託
賃貸
賃料(月額)
935,000円
敷金/保証金
要お問い合わせ
礼金
要お問い合わせ
使用開始日
ご相談
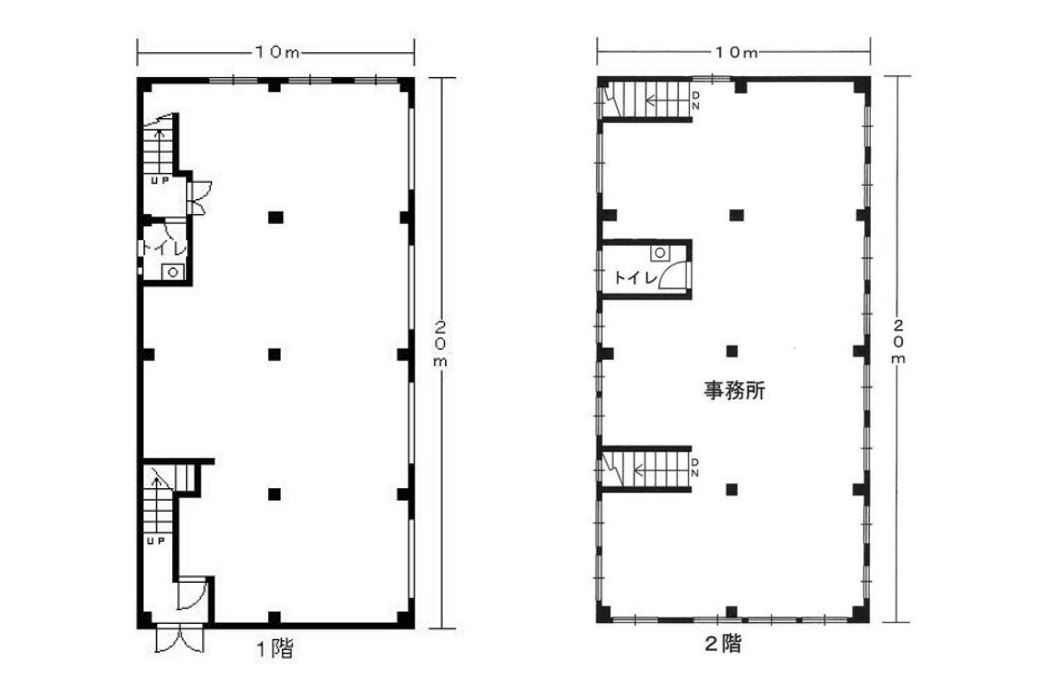
契約面積
121坪
竣工
1984年
構造
鉄骨造
階層
2階
設備
■トイレ2箇所あり

お電話でのお問い合わせも可能です。

お電話の際は、ページ上部にある記載の物件番号をお伝えいただくとスムーズです。

LOGI PICK LOGO
copyright © 2023 LOGI PICK All Right Reserved.