貸し倉庫検索サイト

LOGI PICK by 株式会社ASSORT

千葉県千葉市花見川区柏井町900|貸し倉庫

物件番号:3003

物件情報

所在地
千葉県千葉市花見川区柏井町900-1・900-2合併2
空き状況
アクセス
■東関東自動車道「千葉北IC」4.19㎞ ■京成本線「八千代台」徒歩27分
賃貸/寄託
賃貸
賃料(月額)
2,200,000円
契約形態
普通賃貸借
敷金/保証金
3ヶ月
礼金
1ヶ月
使用開始日
相談
契約面積
277坪
竣工
1971年
構造
軽量鉄骨造
階層
2階
区画
2棟
駐車場
設備
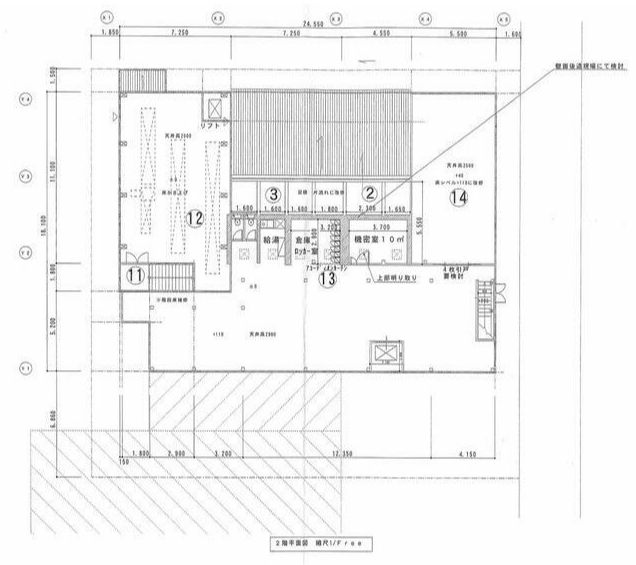
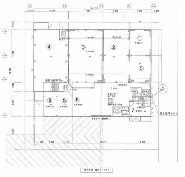
■A棟(事務所・工場・倉庫):1階133.73坪/2階93.57坪 ■B棟(倉庫):50.1坪 ■トイレ2ヶ所、給湯 ■天井高2.5m以上 ■駐車場9台
備考
■保険等加入:加入要 ■契約期間:3年

お電話でのお問い合わせも可能です。

お電話の際は、ページ上部にある記載の物件番号をお伝えいただくとスムーズです。

LOGI PICK LOGO
copyright © 2023 LOGI PICK All Right Reserved.