貸し倉庫検索サイト

LOGI PICK by 株式会社ASSORT

埼玉県久喜市高柳2933|貸し倉庫

物件番号:2971

物件情報

所在地
埼玉県久喜市高柳2933-1
アクセス
■東北自動車道「加須IC」約4.1㎞ ■JR東北本線「栗橋」徒歩39分
賃貸/寄託
賃貸
賃料(月額)
8,824,662円
契約形態
定期借家
敷金/保証金
6ヶ月
礼金
1ヶ月
使用開始日
2026年9⽉下旬予定
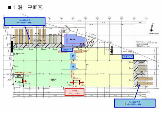
契約面積
2,141坪
敷地面積
1,769坪
床式
高床式
床荷量
1.5t/m2
天井高
5.5m
竣工
2026年
構造
S造
用途地域
市街化調整区域
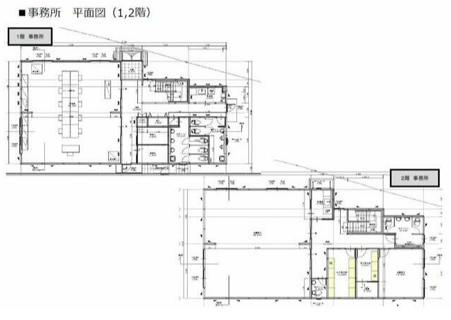
階層
2階
駐車場
設備
■倉庫:1階923.21坪/2階923.21坪/バース(エプロン含む)196.76坪 ■事務所棟:1階49.06坪/2階49.06坪 ■荷物用EV2基(1基は扉2面開き仕様) ■駐車場約250坪(月額賃料に含む) ■2階一部分に下がり天井有 ■建物用途:倉庫業を営む倉庫
備考
■契約期間:5年 ■計画物件につきプラン変更の可能性有

お電話でのお問い合わせも可能です。

お電話の際は、ページ上部にある記載の物件番号をお伝えいただくとスムーズです。

LOGI PICK LOGO
copyright © 2023 LOGI PICK All Right Reserved.