貸し倉庫検索サイト

LOGI PICK by 株式会社ASSORT

神奈川県茅ヶ崎市今宿825|貸し倉庫

物件番号:2963

物件情報

所在地
神奈川県茅ヶ崎市今宿825-1
空き状況
使用中
アクセス
■新湘南バイパス「茅ヶ崎西IC」約0.5㎞ ■JR東海道本線「茅ヶ崎」徒歩38分
賃貸/寄託
賃貸
賃料(月額)
1,633,500円
契約形態
定期借家
敷金/保証金
4ヶ月
礼金
1ヶ月
使用開始日
2026年4⽉1⽇
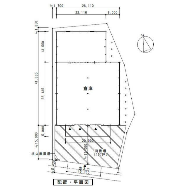
契約面積
330坪
敷地面積
599坪
床式
低床式
天井高
軒高5.6m
竣工
1994年
構造
S造
用途地域
1種中高
階層
1階
設備
■平屋建て ■電気、水道、トイレ
備考
■償却:契約時1ヶ月 ■契約期間:2年 ■指定借家人賠償責任補償特約付火災保険要加入 ■指定賃貸保証制度要加入 ■指定工事業者あり ■原状変更・造作を行う場合、内容により別途敷金あり

お電話でのお問い合わせも可能です。

お電話の際は、ページ上部にある記載の物件番号をお伝えいただくとスムーズです。

LOGI PICK LOGO
copyright © 2023 LOGI PICK All Right Reserved.