貸し倉庫検索サイト

LOGI PICK by 株式会社ASSORT

大阪府大阪市平野区長吉長原東3丁目|貸し倉庫

物件番号:2926

物件情報

所在地
大阪府大阪市平野区長吉長原東3-1-28
空き状況
アクセス
■近畿自動車道「長原」IC 1.0km ■大阪メトロ谷町線「長原」駅 徒歩5分
賃貸/寄託
賃貸
賃料(月額)
2,200,000円
敷金/保証金
3ヶ月
礼金
1ヶ月
使用開始日
2025年11月上旬予定
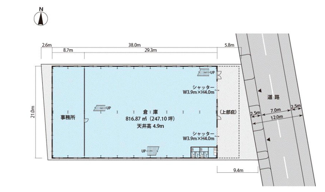
契約面積
488坪
敷地面積
318坪
竣工
1988年
構造
鉄骨造ストレート葺造
用途地域
第一種住居地域
階層
2階
駐車場
設備
■事務所あり ■トイレあり

お電話でのお問い合わせも可能です。

お電話の際は、ページ上部にある記載の物件番号をお伝えいただくとスムーズです。

LOGI PICK LOGO
copyright © 2023 LOGI PICK All Right Reserved.