
物件情報
- 所在地
- 東京都葛飾区東四つ木4丁目30
- 空き状況
- 空
- アクセス
- ■首都高速中央環状線「四つ木出入口(IC)」1.69㎞ ■京成押上線「四ツ木」徒歩9分
- 賃貸/寄託
- 賃貸
- 賃料(月額)
- 990,000円
- 契約形態
- 定期借家
- 敷金/保証金
- 5ヶ月
- 礼金
- 1ヶ月
- 使用開始日
- 相談
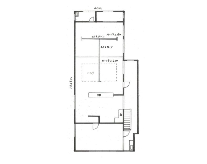
- 契約面積
- 109坪
- 敷地面積
- 88坪
- 床式
- 低床式
- 天井高
- 1階3.2m~5.9m
- 竣工
- 1965年
- 構造
- S造
- 用途地域
- 工業地域
- 階層
- 2階
- 区画
- 1階-2階
- 駐車場
- 無
- 設備
- ■1階68坪/2階41坪、1棟貸し ■クレーン:1階3機(1.5t)、2階2機(0.5t) ■2階床補強箇所あり ■トイレ、都市ガス ■エアコン(残置物)
- 備考
- ■契約期間:3年 ■前入居者金型プレス加工
お電話でのお問い合わせも可能です。
お電話の際は、ページ上部にある記載の物件番号をお伝えいただくとスムーズです。