
物件情報
- 所在地
- 大阪府豊中市庄内宝町1-7-1
- 空き状況
- 空
- アクセス
- ■阪神高速11号池田線「豊中」IC 1.3km ■阪急電鉄宝塚線「庄内」駅 徒歩19分
- 賃貸/寄託
- 賃貸
- 賃料(月額)
- 1,100,000円
- 敷金/保証金
- 6ヶ月
- 礼金
- 要お問い合わせ
- 使用開始日
- ご相談
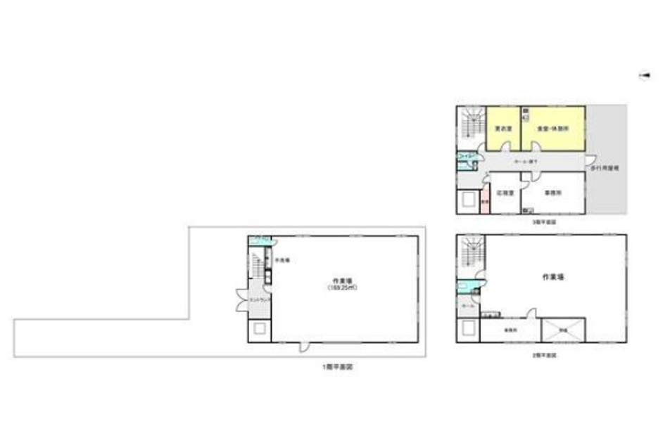
- 契約面積
- 159坪
- 敷地面積
- 99坪
- 竣工
- 2004年
- 構造
- 鉄骨造
- 用途地域
- 準工業地域
- 階層
- 3階
- 駐車場
- 有
- 設備
- ■トイレあり(2ヶ所)
お電話でのお問い合わせも可能です。
お電話の際は、ページ上部にある記載の物件番号をお伝えいただくとスムーズです。