
物件情報
- 所在地
- 神奈川県横須賀市根岸町4丁目12
- 空き状況
- 使用中
- アクセス
- ■横浜横須賀道路「佐原料金所」車7分 ■京急久里浜線「北久里浜」徒歩13分
- 賃貸/寄託
- 賃貸
- 賃料(月額)
- 1,131,900円
- 契約形態
- 普通賃貸借
- 敷金/保証金
- 16ヶ月
- 礼金
- 1ヶ月
- 使用開始日
- 2025年12⽉上旬予定
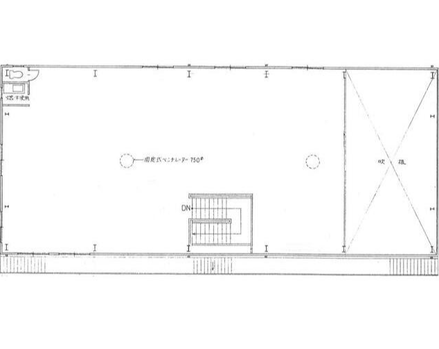
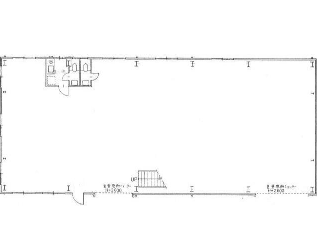
- 契約面積
- 147坪
- 床式
- 低床式
- 竣工
- 1987年
- 構造
- S造
- 用途地域
- 1種中高
- 階層
- 2階
- 区画
- 1階-2階
- 駐車場
- 有
- 設備
- ■1階82.32坪/2階64.68坪、1棟貸し ■照明器具一式 ■電動シャッター2基 ■残置物:1・2階トイレ、1階ミニキッチン ■駐車場空き10台
- 備考
- ■償却:解約時2ヶ月 ■賃貸保証:加入要 指定保証会社有 ■保険等加入:加入要/借家人賠償責任保険付火災保険 ■契約期間:3年 ■既存不適格建築物、検査済証なし
お電話でのお問い合わせも可能です。
お電話の際は、ページ上部にある記載の物件番号をお伝えいただくとスムーズです。