
物件情報
- 所在地
- 千葉県千葉市美浜区新港65-2
- 空き状況
- 空
- アクセス
- ■京葉道路「穴川IC」約4.7㎞ ■京成千葉線「西登戸」約1.6㎞
- 賃貸/寄託
- 賃貸
- 賃料(月額)
- 797,412円
- 契約形態
- 定期借家
- 敷金/保証金
- 3ヶ月
- 礼金
- 1ヶ月
- 使用開始日
- 相談
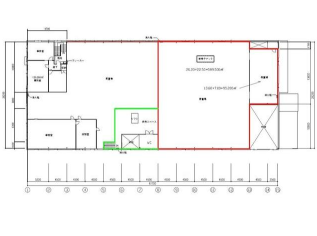
- 契約面積
- 207坪
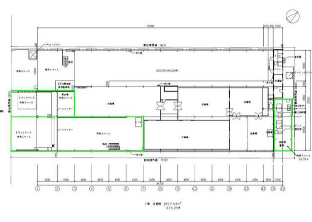
- 敷地面積
- 650坪
- 竣工
- 1970年
- 構造
- S造
- 用途地域
- 準工業
- 階層
- 2階
- 区画
- 2階部分貸し
- 設備
- ■トイレ ■天井高5.5m未満 ■24時間稼働可
- 備考
- ■契約期間:3年
お電話でのお問い合わせも可能です。
お電話の際は、ページ上部にある記載の物件番号をお伝えいただくとスムーズです。