
物件情報
- 所在地
- 埼玉県川越市大字寺山136-1
- 空き状況
- 使用中
- アクセス
- ■首都圏中央連絡自動車「川島IC」6.17㎞ ■JR川越線「西川越」2.7㎞
- 賃貸/寄託
- 賃貸
- 賃料(月額)
- 1,320,000円
- 契約形態
- 普通賃貸借
- 敷金/保証金
- 4ヶ月
- 礼金
- 1ヶ月
- 使用開始日
- 2026年2⽉1⽇
- 契約面積
- 272坪
- 敷地面積
- 631坪
- 床式
- 低床式
- 竣工
- 1971年
- 構造
- S造
- 用途地域
- 市街化調整区域
- 階層
- 1階
- 駐車場
- 有
- 設備
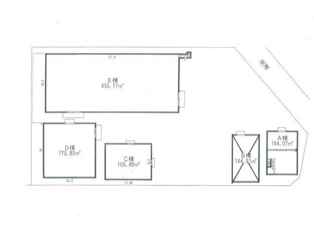
- ■A棟:2階事務所49.6坪 ■B棟:使用不可 ■C棟:平屋倉庫32.2坪 ■D棟:平屋倉庫51.6坪 ■E棟:平屋倉庫138坪
- 備考
- ■契約期間:3年
お電話でのお問い合わせも可能です。
お電話の際は、ページ上部にある記載の物件番号をお伝えいただくとスムーズです。