貸し倉庫検索サイト

LOGI PICK by 株式会社ASSORT

千葉県野田市木間ケ瀬4764|貸し倉庫(一棟貸し)

物件番号:2764

物件情報

所在地
千葉県野田市木間ケ瀬4764
アクセス
首都圏中央連絡自動車道「五霞IC」13.75㎞
賃貸/寄託
賃貸
賃料(月額)
1,590,400円
敷金/保証金
3ヶ月
礼金
1ヶ月
使用開始日
相談
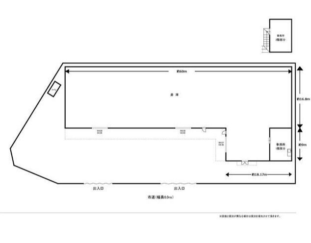
契約面積
371坪
床式
低床式
天井高
約5.79~約6.64m
用途地域
市街化調整区域
階層
2階
区画
1階-2階
設備
■1階354.38坪/2階16.33坪、1棟貸し ■事務所 ■浄化槽
備考
■賃貸保証:要加入 ■契約期間:3年 ■検査済証なし ■業種により敷金上乗せ有り

お電話でのお問い合わせも可能です。

お電話の際は、ページ上部にある記載の物件番号をお伝えいただくとスムーズです。

LOGI PICK LOGO
copyright © 2023 LOGI PICK All Right Reserved.