
物件情報
- 所在地
- 東京都東久留米市前沢4丁目1-18
- 空き状況
- 空
- アクセス
- ■関越自動車道「所沢IC」10.47㎞ ■西武新宿線「花小金井」バス6分「前沢四丁目」停歩1分
- 賃貸/寄託
- 賃貸
- 賃料(月額)
- 1,375,000円
- 契約形態
- 普通賃貸借
- 敷金/保証金
- 3ヶ月
- 礼金
- 2ヶ月
- 使用開始日
- 2025年11月1日
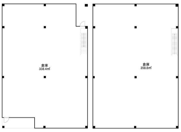
- 契約面積
- 102坪
- 床式
- 高床式
- 竣工
- 1999年
- 構造
- S造
- 階層
- 2階
- 区画
- 1階-2階
- 駐車場
- 有
- 設備
- ■2階の明け渡し時期相談 ■駐車場台数相談(13,200円/台~) ■トイレ設置可能(応相談)
- 備考
- ■償却:更新時20% ■契約期間:3年
お電話でのお問い合わせも可能です。
お電話の際は、ページ上部にある記載の物件番号をお伝えいただくとスムーズです。