貸し倉庫検索サイト

LOGI PICK by 株式会社ASSORT

大阪府堺市堺区⾹ヶ丘町3丁目|貸し倉庫

物件番号:2365

物件情報

所在地
大阪府堺市堺区⾹ヶ丘町3-3-6
空き状況
使用中
アクセス
■阪神高速6号大和川線「常磐」IC 3.0km ■南海電鉄⾼野線 「浅⾹⼭」 徒歩4分
賃貸/寄託
賃貸
賃料(月額)
550,000円
敷金/保証金
1ヶ月
礼金
2ヶ月
使用開始日
相談
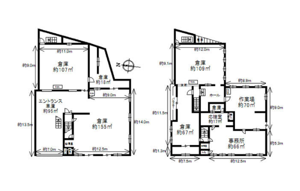
契約面積
243坪
敷地面積
169坪
天井高
2.5m
竣工
1981年
構造
鉄骨造
用途地域
第二種中高層住居専用地域
階層
2階
駐車場
設備
■駐車場3台分以上あり(無料)
備考
■検査済証無し/増築未登記部分有り ■保険等:要 2年 ■更新料:なし ■賃貸保証:加⼊要 たくっちサポート保証

お電話でのお問い合わせも可能です。

お電話の際は、ページ上部にある記載の物件番号をお伝えいただくとスムーズです。

LOGI PICK LOGO
copyright © 2023 LOGI PICK All Right Reserved.