貸し倉庫検索サイト

LOGI PICK by 株式会社ASSORT

埼玉県加須市不動岡3丁目|貸し倉庫(一棟貸し)

物件番号:1601

物件情報

所在地
埼玉県加須市不動岡3丁目25-4
空き状況
使用中
アクセス
■東北自動車道「羽生IC」約5.4㎞ ■東武伊勢崎⼤師線「加須」徒歩29分
賃貸/寄託
賃貸
賃料(月額)
850,000円
契約形態
普通賃貸借
敷金/保証金
2ヶ月
礼金
1ヶ月
使用開始日
相談
契約面積
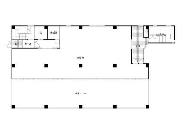
336坪
竣工
1988年
構造
S造
階層
3階
区画
1階-3階
駐車場
設備
■1階109.19坪/2-3階113.34坪、1棟貸し ■エアコン(残置物) ■EV任意で使用可(点検等借主負担) ■駐車場空き4台、別途駐車場10台(33,000円/月)
備考
■賃貸保証:加入要/保証料:賃料の100% 1年毎の更新時:月額賃料の10% 引落手数料:月額220円 ■契約期間:5年

お電話でのお問い合わせも可能です。

お電話の際は、ページ上部にある記載の物件番号をお伝えいただくとスムーズです。

LOGI PICK LOGO
copyright © 2023 LOGI PICK All Right Reserved.